Need help?
Feel free to chat with one of our friendly specialists if you have any additional questions, or alternatively, you can simply complete our contact form.
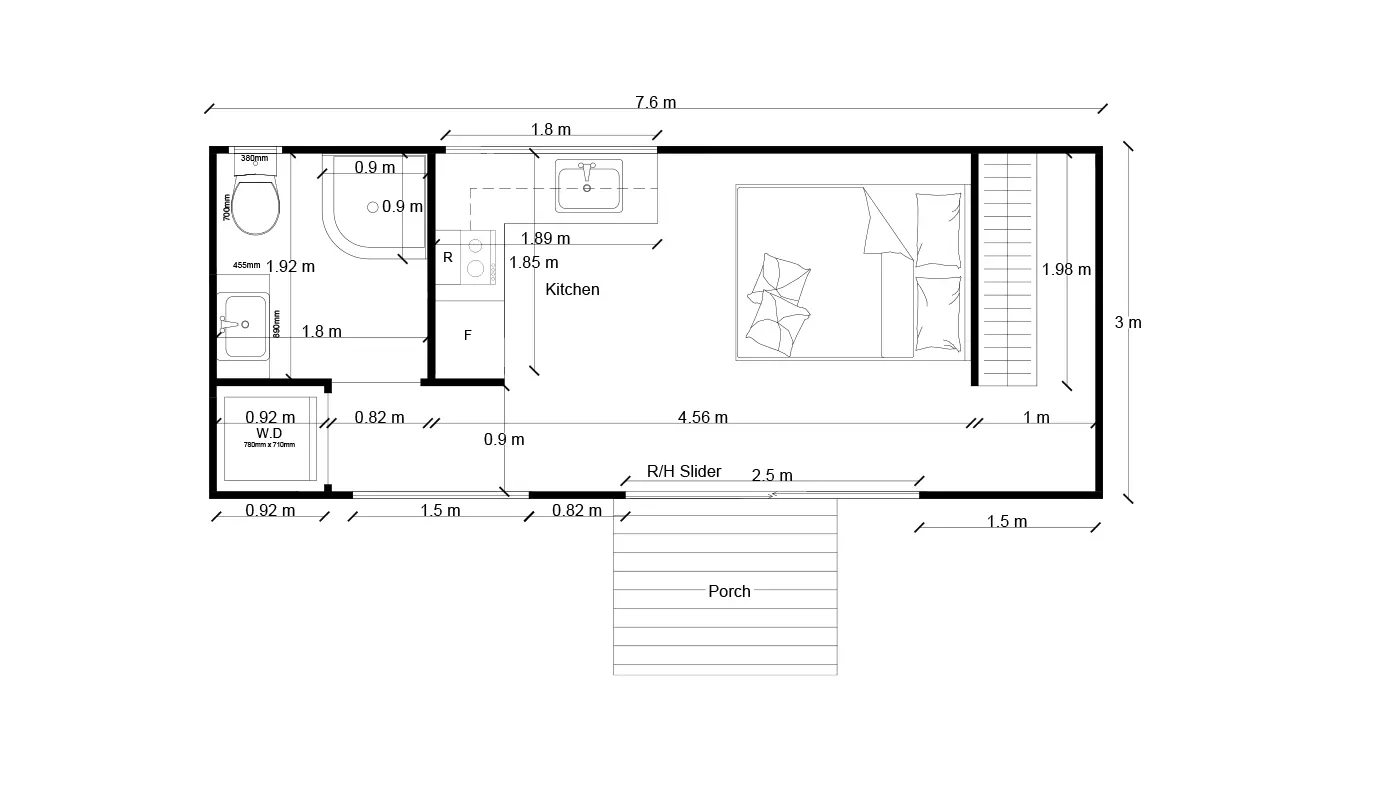
Open Plan Studio
Kitchen | Bathroom | 22.8m2 (7.6m x 3)
$79,000
Pricing includes GST and excludes delivery.
Experience the ultimate convenience and style in our open plan studio, featuring a modern bathroom and kitchen. Discover the perfect blend of comfort and organisation in this well-equipped studio.
The MicroHomes Difference.
Five Year Warranty
Built by Master Builders
NZ Construction Code Compliant
Electrical and Gas Certificates included
North Island Delivery Available
Finance Options Available
- 22.8m squared (7.6m x 3m)
- Solid Galvanised Steel Chassis Trailer (available as an optional extra).
- NZ Construction code compliant
- Electrical and gas certificate included.
- 16AMP power supply
- Rinnai gas hot water heating.
- Standard and USB powerpoints throughout home.
- Monopitch ColorSteel roof
- Cladding - Weathertex & ColorSteel
Inside this tiny home, every inch of space is utilised efficiently and creatively, resulting in a cozy and functional living space. Detailed specs below.
- Steel framing - (90mm wall thickness).
- Fully Insulated walls, ceiling and underfloor
- Grooved, smooth or custom wood interior wall and ceiling lining options available.
- Double glazed windows and Aluminum Joinery - colour options available
- Fully painted interior - colour options available
- Clipboard Flooring - colour options available
- LED Lights to interior and exterior
- Smoke alarms
- High quality Kitchen cabinets - standard white gloss cabinets (colour options available as an optional extra).
- Benchtops - standard white engineered stone (colour options available as an optional extra).
- Stainless steel inbuilt sink
- Electric underbench Oven and electric Cooktop
- Ducted Rangehood - behind cabinets.
- Splashback - Standard colour options available.
Bathroom
- Shower - 900 x 900mm
- Toilet
- Raymor fixtures available - standard chrome (colour options available as an optional extra).
- Window
- Extractor fan
- Wall hung vanity
- Mirror cabinet
- Heated towel rail
- Toilet roll holder
Laundry
- Built in wardrobe to facilitate a washer dryer combo
- Solid Galvanised Steel Chassis Trailer
- Marine grade exterior colorsteel cladding
- Septic system
- Off grid solar power system
- Accessible bathroom
- Timber decks - Pine or Kwila
- Front verandah
- Heat Pump
- Pre-wired for a heat pump
- Additional TV Connections
- Gas cooktop
- All timber flooring
- All Vinyl flooring
- Carpet
- Bespoke fixture colours
- Tiles for splash-back
- Underfloor heating
In the consultation phase, we will work with you to determine the delivery expenses for your Tiny Home. The cost will differ based on your location within New Zealand, as we collaborate with different delivery partners who cater to specific location needs.
If you reside in the Auckland area, we also provide the option for onsite construction, which incurs additional expenses for site preparation.
We will deliver your tiny home on an agreed date, time and location. 14-16 weeks approximately from securing your order.
Regarding financing, we understand the unique challenges in securing funds for Tiny Homes and have finance solutions available if required. Enquire now.
FAQs.
Are Tiny Homes legal?
Yes, tiny homes are generally legal in New Zealand. However, regulations regarding their placement, zoning, and building requirements may vary between different regions and local authorities.
Do I need a consent?
MBIE (Ministry of Business, Innovation and Employment) have a Tiny House Guidance document to assist in determining if your tiny house is a vehicle or a building or both. The flowchart they developed is very helpful in determining if your home is a vehicle or building. If your tiny house is a vehicle and MOVABLE it is exempt from the Building Act 2004. Resource consent will depend on whether you are plumbing into Council grey water systems and again we recommend it is best to contact your local Council to get all the information you require with regards to this.
Can I put a Tiny Home on any property?
It depends on the zoning regulations and land-use policies of the specific property. Some areas may allow tiny homes on residential lots, while others may have restrictions or specific requirements. Check with your local council for guidance.
Do you offer a warranty?
Yes, all of our products and appliances come with the manufacturer’s warranties and we offer a one year warranty on the workmanship of your tiny home and five years on the structural components. These warranty conditions are also documented in our build contract and terms of trade.
View Similar Items.



Customer Reviews.

Would definitely recommend MicroHomes and would 100% use them again. My build was completed on time and looks fantastic, nothing was too much trouble - thanks so much MicroHomes.
Kath Robertson

We would absolutely build with MicroHomes again, nothing was too much trouble, very professional. The whole process ran smoothly and on time. A very easy decision to get the next one started.
Lucia Franghetti

Quality workmanship with our new build in Clevedon. They delivered on time and within budget. We are very happy customers! Read more reviews.
Brian and Jane
Customer Feedback.
-1.png)
It was a great experience working with Focus theme. We highly recommend it! Far far away, behind the word mountains, far from the countries Vokalia.
Walter Craftson, Acme

Far far away, behind the word mountains, far from the countries and Consonantia, live the blind texts. It was a great experience working with Focus theme.
Cole Sullivan

It was a great experience working with Focus theme. We highly recommend it! Far far away, behind the word mountains, far from the countries Vokalia.
Margaret Fitch, Acme


